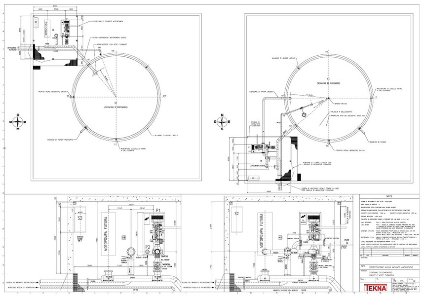
Stazione di pompaggio
Centrale termoelettrica a cogenerazione
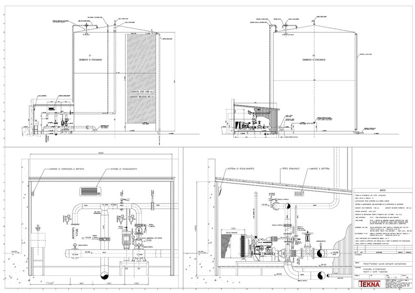
Parco serbatoi
Home
Informazioni generali
Attività
Progettazione Impianti
Progettazione Apparecchiature
Progettazione Serbatoi
Progettazione Skid
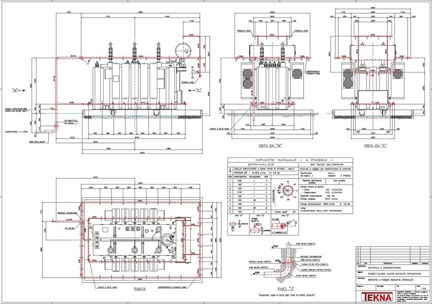
Progettazione antincendio
Progettazione edile
Lavori eseguiti
Novità
Contatti
Avete domande o richieste?
Volete un preventivo?
Contattateci al numero 0161/210022 o compilate il nostro
modulo online
.
Sei il visitatore
Tweetta questa pagina
Tweet
Condividi